






Facts &Features

4
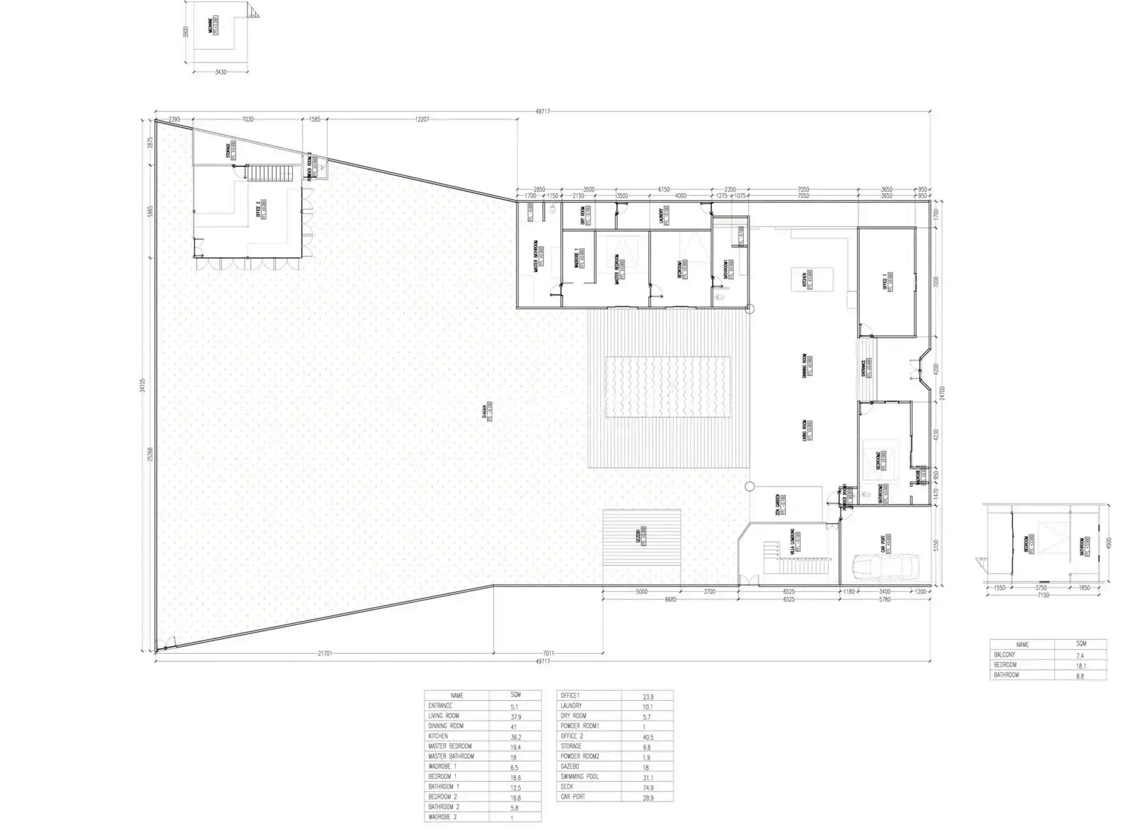
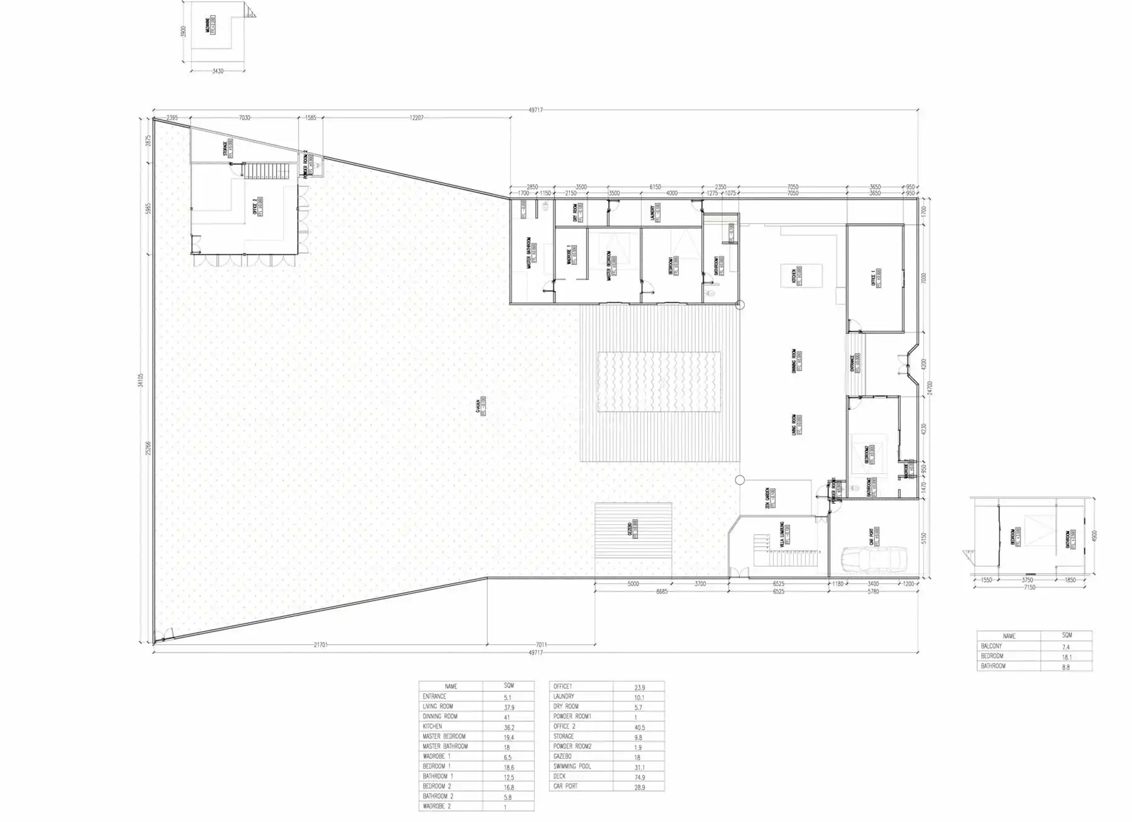
Bedrooms
3
Bathrooms
1,150 m2
Land Size
241 m2
Building Size
Living RoomEnclosed
Building Year2017
FurnishedFully
Land TitleHak Sewa
AboutVilla Jocasta
Boasting a harmonious blend of tropical charm and comforts, this spacious haven promises an unparalleled escape to elevate your lifestyle.
This villa is in Pererenan and offers the perfect balance of seclusion and convenience. Tucked away in a serene neighborhood, yet just a stone’s throw away from the pristine beaches, it provides easy access to nature’s wonders and the amenities of urban living.
Step into a world of refined elegance as you enter this stunning villa. With four bedrooms and four bathrooms spread across a spacious 11.5-acre land area, there’s ample room for relaxation and rejuvenation. The airy, open living spaces, adorned with wooden accents, exude a tropical bohemian charm that invites you to unwind and soak in the beauty of your surroundings.
The villa has 27-year leaseholds, with a lease ending in December 2050. Thus, you can immerse yourself in the enchanting allure of Bali for years to come.
For those seeking holistic wellness and inner peace, this villa offers a dedicated wellness space where you can comfortably do yoga and work out. This tranquil sanctuary provides the perfect setting to nourish your mind, body, and soul.
Its seamless blend of natural beauty, modern comforts, and serene ambiance offers an unparalleled retreat for tranquility and relaxation. Don’t miss your chance to make this dream getaway your paradise.
PropertyDetails
Bathrooms
- Bathtub
Bedrooms
- AC
Kitchen
- Fully Equipped
- Fridge
- Oven
- Stove
Other
- Garage/Carport
- Storage Room
- Maids Room
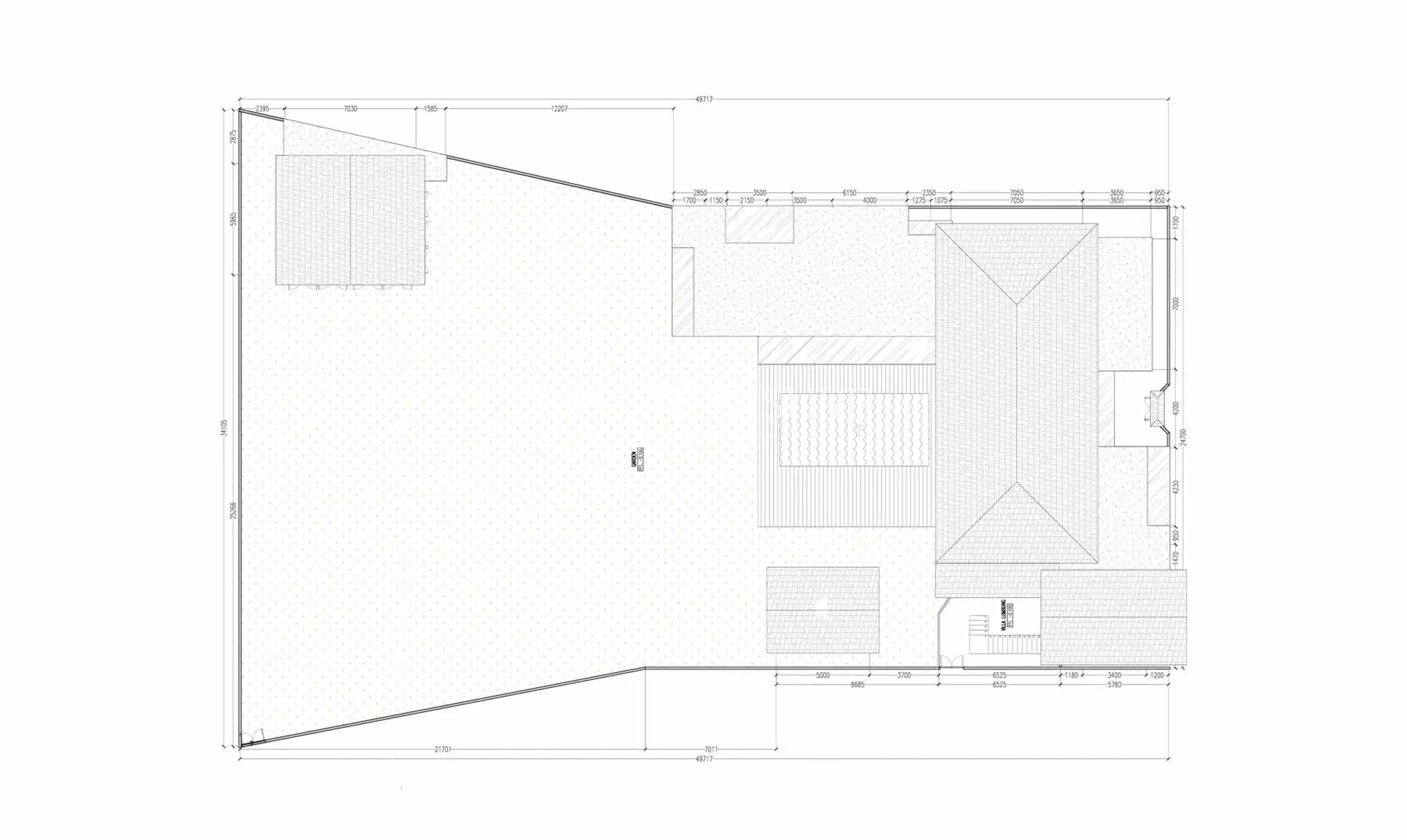
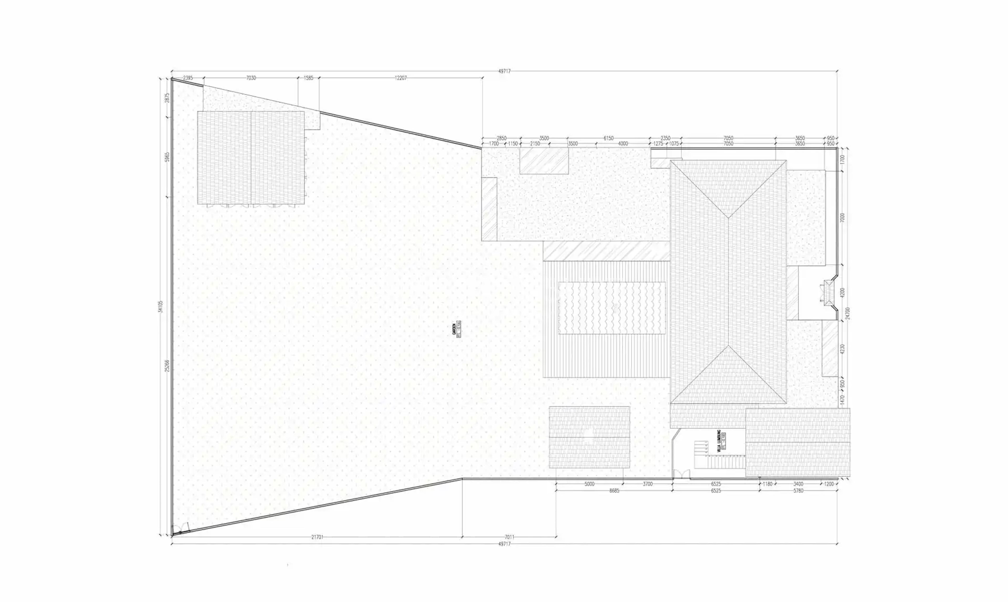
FloorPlans
LocationMap










































































